Interior Architecture
>  Porte de Vanves

Porte de Vanves

PROJECT TYPE | rehabilitation and interior design
YEAR | 2025
LOCATION | Porte de Vanves, located in Paris, France

The project is a student residence located in Building D, at Porte de Vanves. Situated at the boundary between Paris and its surrounding suburbs, the site benefits from a strategic location, positioned between major road infrastructures and a variety of public transportation networks. This transitional urban context makes it a suitable place for the creation of a convivial space, capable of fostering interaction between neighborhood residents and the inhabitants of the residence.

Inspired by references such as the Fondation Avicenne and the Anne Frank Residence, four key concepts structure the project : levitation, transition, continuity, and boundary. These notions have guided both the spatial organization and the architectural design. Building D is composed of four types of spaces :
-  The ground floor accommodates functions open to the city : an international grocery store, a large entrance hall, a bicycle storage room, and a technical waste management room. This level is conceived as a place of exchange between students and local residents.
-  Levels R+1 and R+2 are dedicated to shared student facilities, including a gym, a game room, a Pilates room, as well as shared work and living spaces.
-  From R+3 to R+10, the private spaces are organized according to the four concepts mentioned above.
-  Finally, the accessible rooftop terraces are landscaped public spaces offering panoramic views and collective areas for relaxation.

This project aims to create a residence open to the city, conceived as a rich, functional, and poetic living environment. Through the diversity of typologies, it explores the relationships between interior and exterior, between the individual and the collective, and between ground and sky, while integrating nature at the heart of the project through three types of views : borrowed views, created views, and framed views.

BUILDING D
R+3 and R+4 | Private spaces – continuity typology (shared apartments for 6 students)
R+5 and R+6 | Private spaces – transition typology (duplex shared apartments for 6 students)
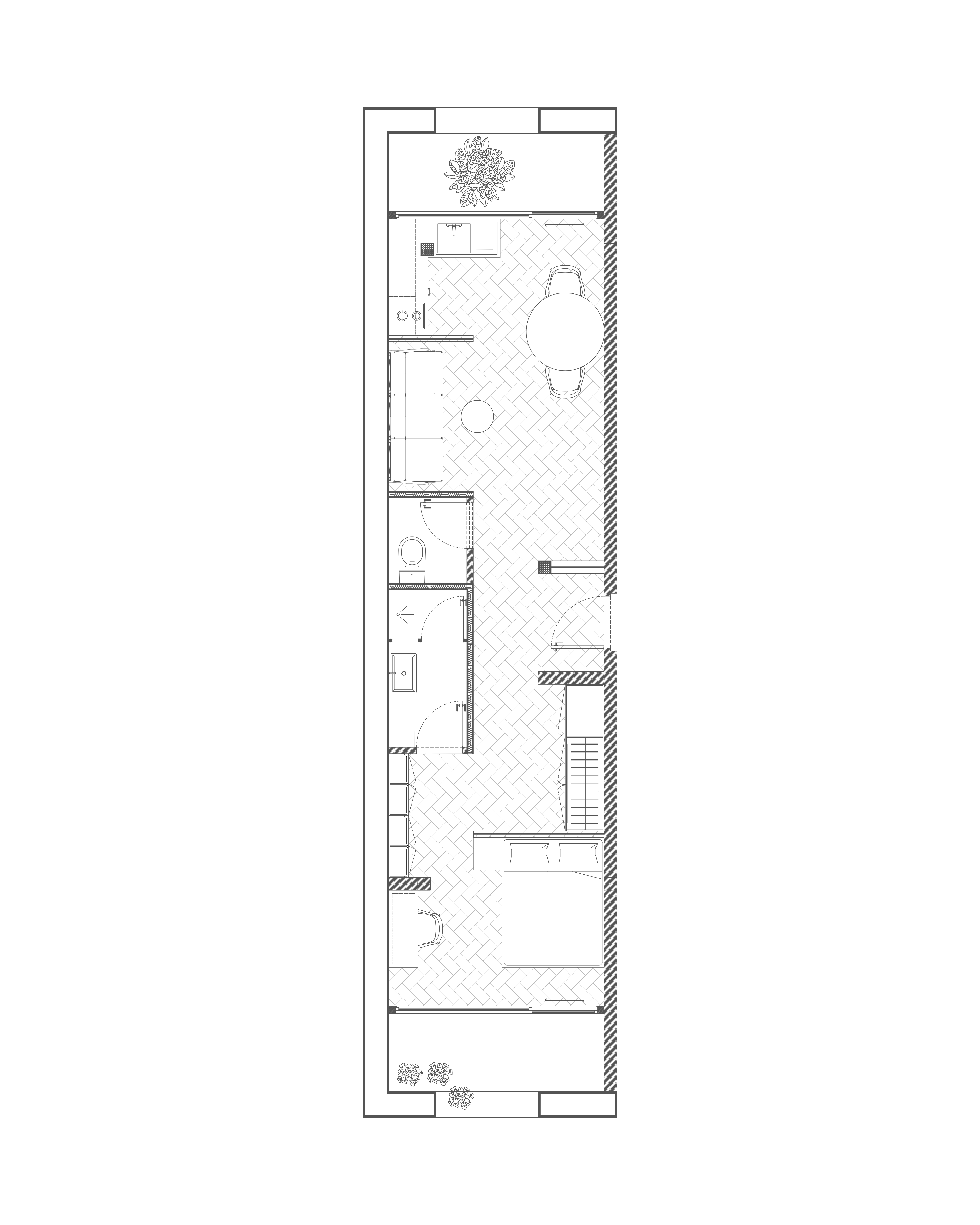
R+7 to R+10 | Private spaces – boundary typology (duo apartments)
R+7 to R+10 | Private spaces – levitation typology (individual apartments)
R+2 | Shared student spaces – shared work space and shared living space